
Okanagan Duplex
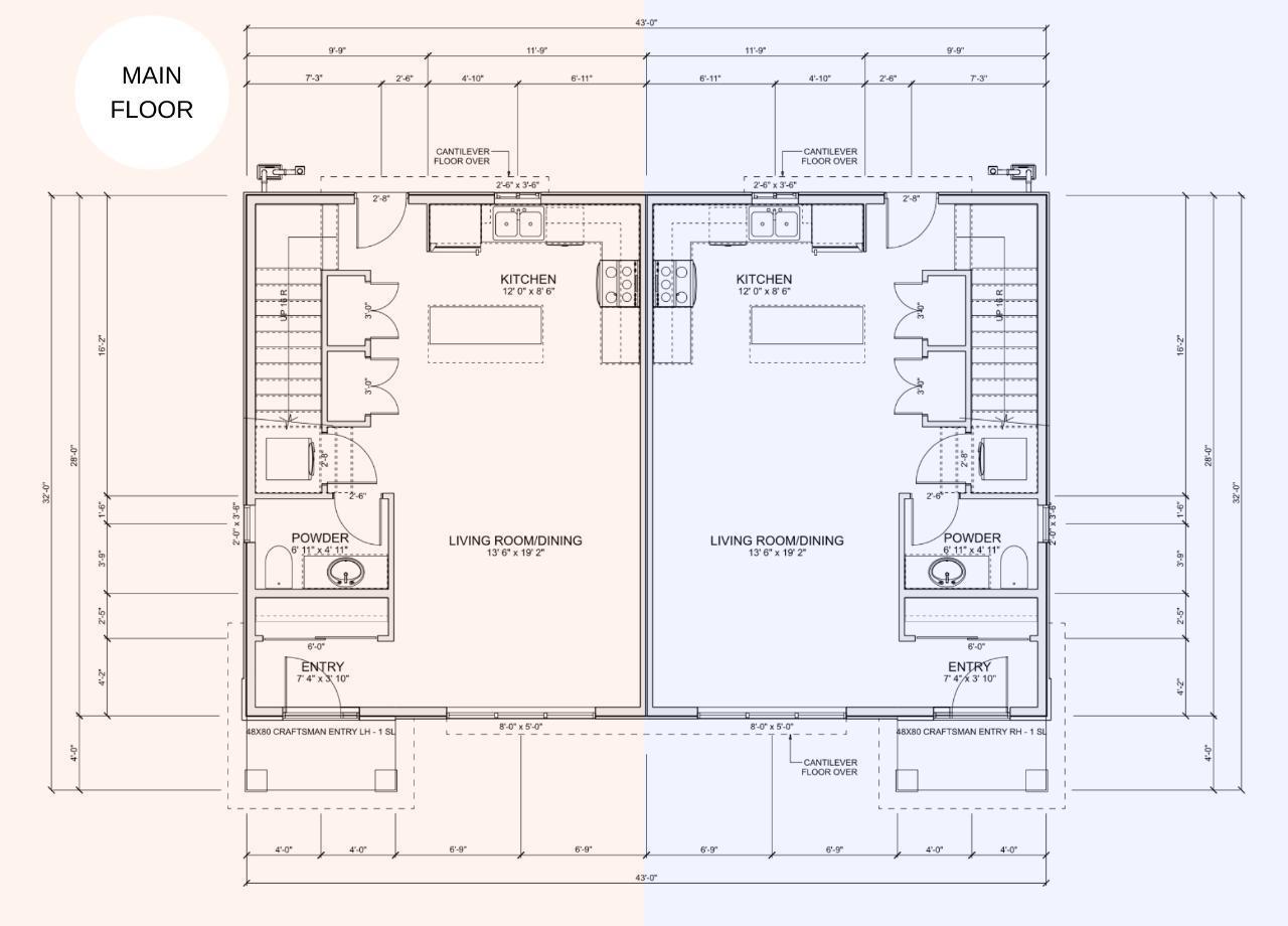
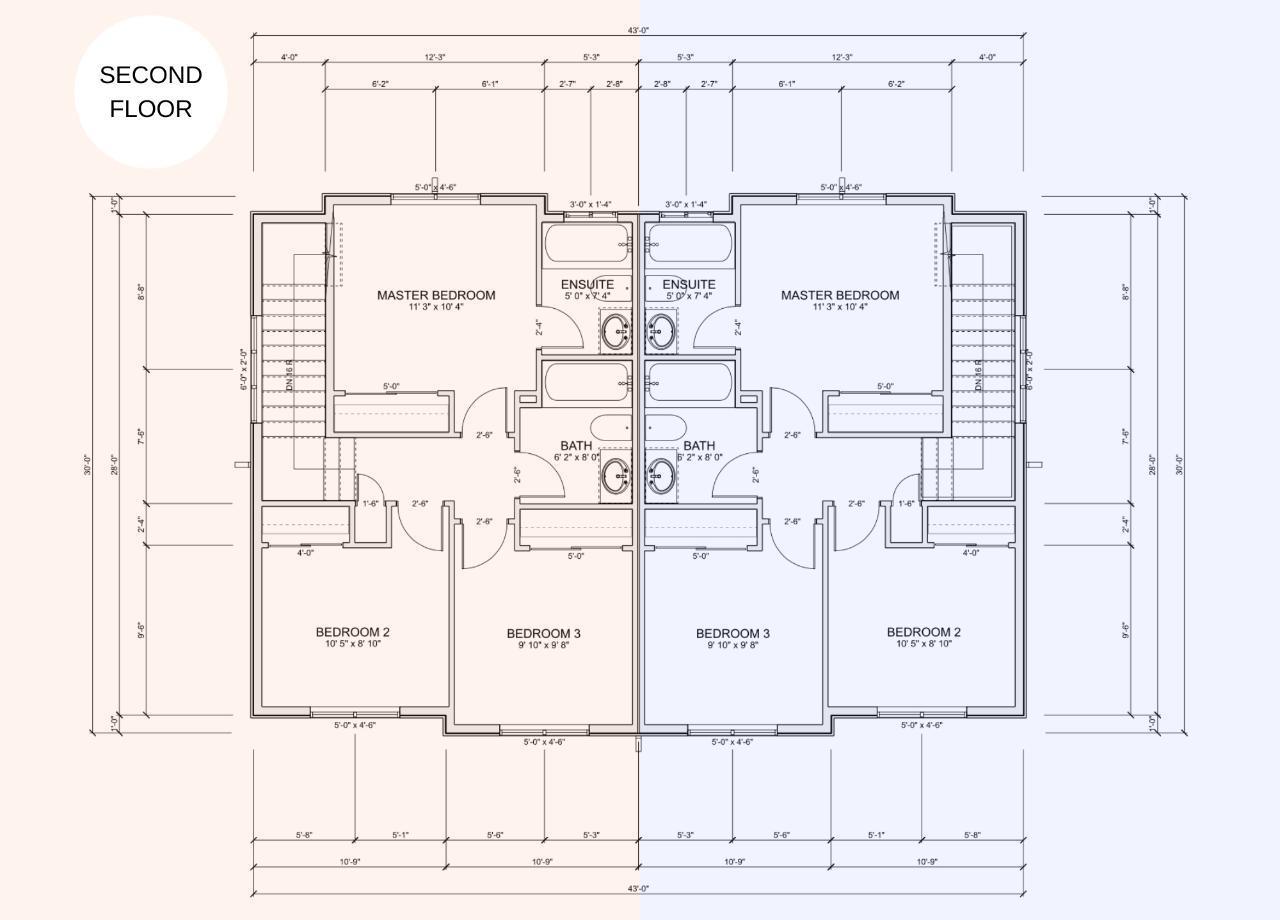
Discover the essence of tranquil living in the heart of Penticton with our exceptional 3-bedroom, 3-bathroom duplex development. Each residence exudes the warmth and charm of a farmhouse exterior, perfectly harmonizing with the beauty of its surroundings. Meticulously designed with a keen eye for detail, these duplexes stand as a testament to quality craftsmanship. Step inside to experience a spacious haven where every corner has been thoughtfully planned. With three bedrooms and three elegantly appointed bathrooms, these homes cater to comfort and convenience. Set against the backdrop of Penticton's natural allure, this development invites you to indulge in a lifestyle that embodies both relaxation and sophistication. Live amidst the splendor of Penticton's landscapes while reveling in the superior quality and attention to detail that define these remarkable duplexes.







